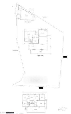
Villa in vendita Via Sodine 51, Frosinone
Salva
Casa.it
1/21
  • Street View
  • Map