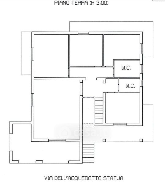
Villa in vendita Via dell'Acquedotto Statua , Ladispoli
Salva
Casa.it
1/26
  • Street View
  • Map