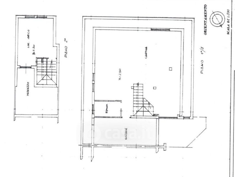
Villa in vendita Via A. Stradella , Latina
Salva
Casa.it
1/33
  • Street View
  • Map