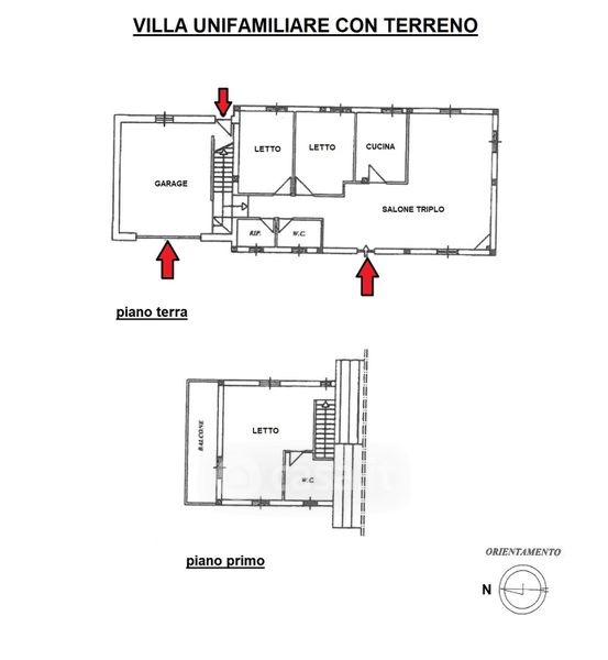
Villa in vendita Via del Casale Mazzini 62, Monte Compatri
Salva
Casa.it
1/40
  • Street View
  • Map