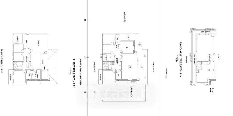
Villa in vendita Via Fabbrica Palmieri 27, Nerola
Salva
Casa.it
1/67
  • Street View
  • Map