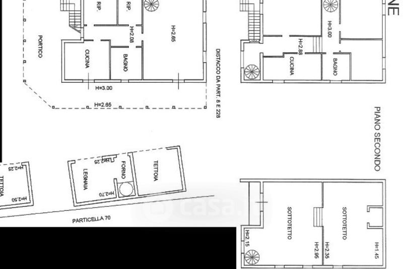
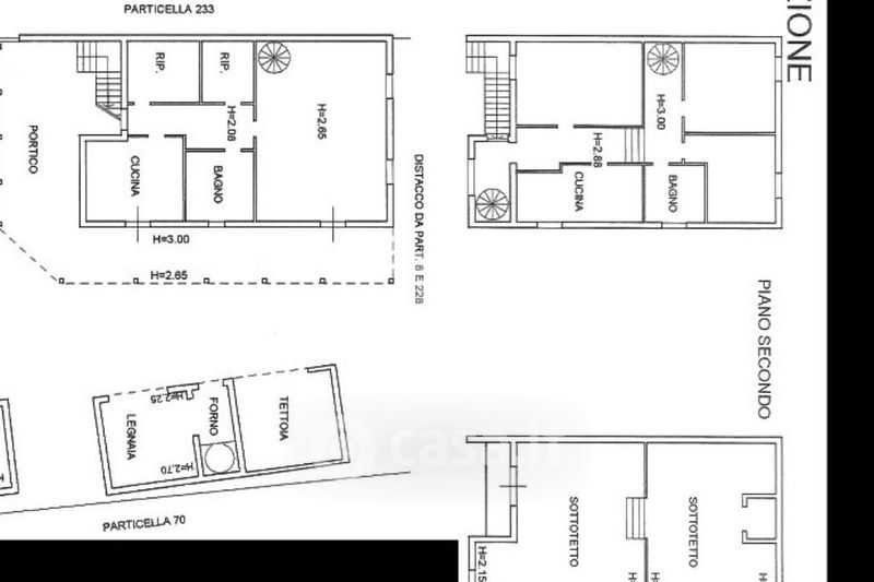
Villa in vendita Strada di Colle Pedeschiavo 144, Palombara Sabina
Salva
Casa.it
1/32
  • Street View
  • Map