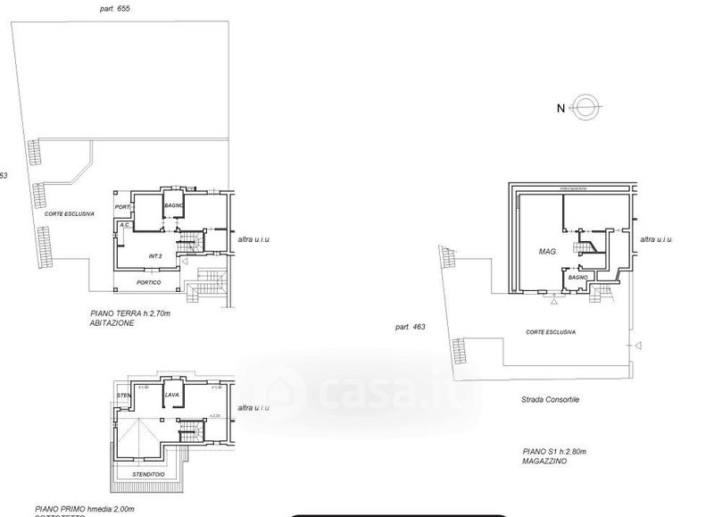
Villa in vendita Località Valle Spadana - Viale Adriatico , Rignano Flaminio
Salva
Casa.it
1/29
  • Street View
  • Map