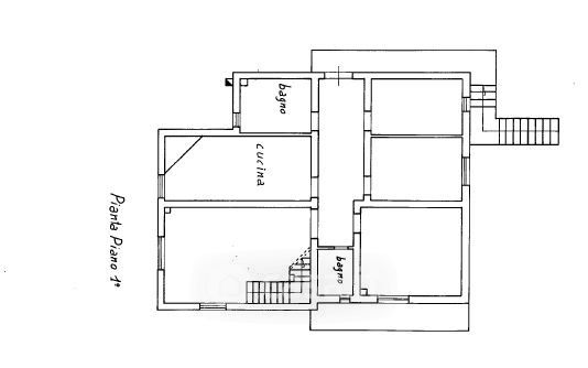
Villa in vendita Via Eugenio Cecconi 164, Roma
Salva
Casa.it
1/42
  • Street View
  • Map