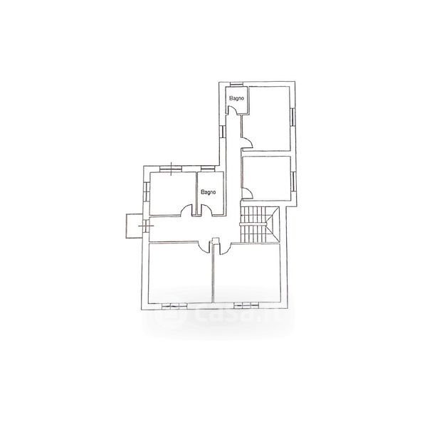
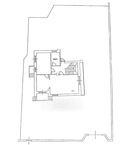
Villa in vendita Via Bolotana , Roma
Salva
Casa.it
1/50
  • Street View
  • Map