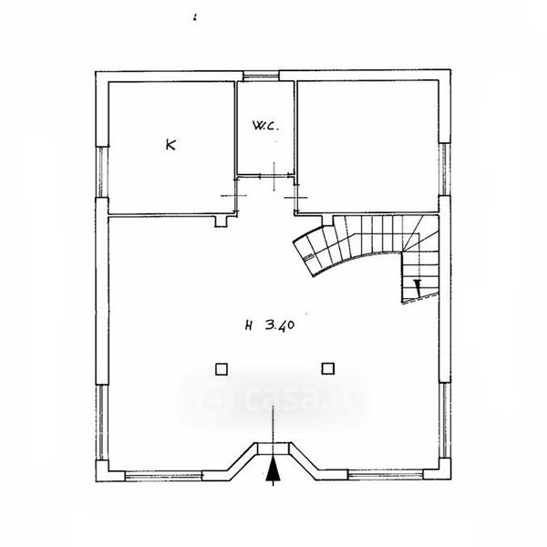
Villa in vendita Via Bitti 136, Roma
Salva
Casa.it
1/65
  • Street View
  • Map