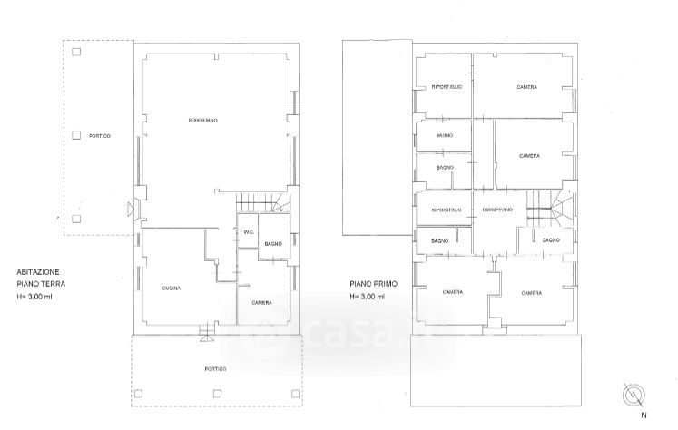
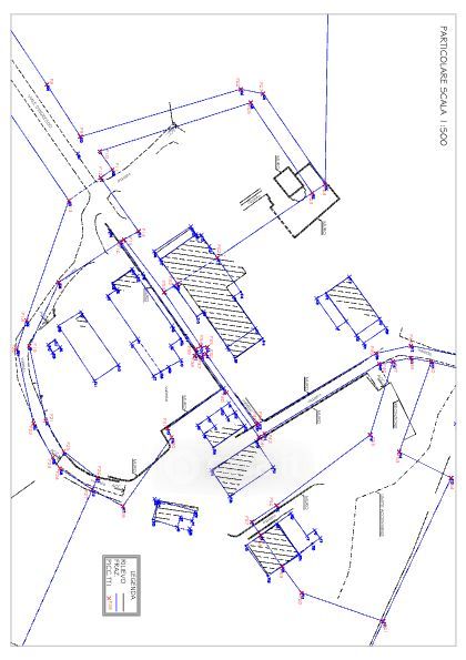
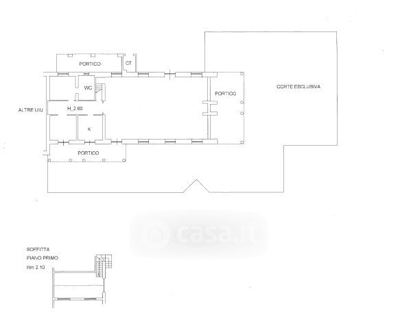
Villa in vendita Via della Giustiniana 995, Roma
Salva
Casa.it
1/46
  • Street View
  • Map