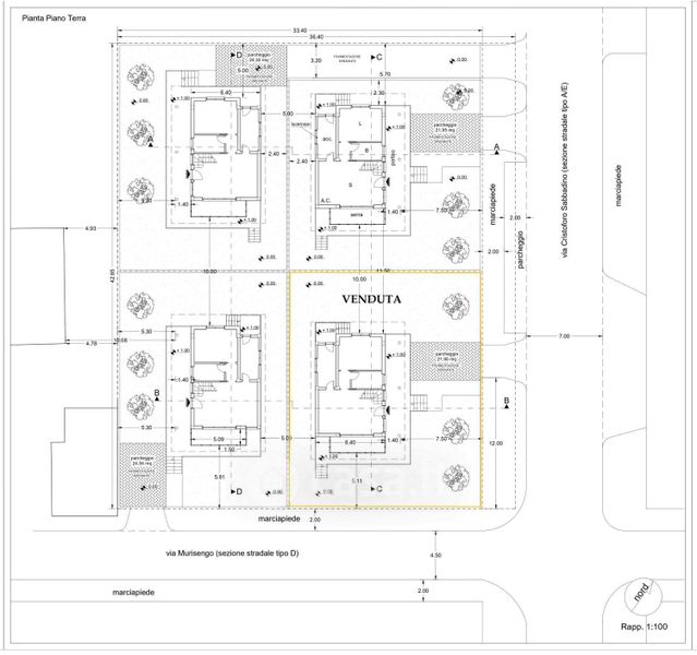
Villa in vendita Via Cristoforo Sabbadino , Roma
Salva
Casa.it
1/5
  • Street View
  • Map