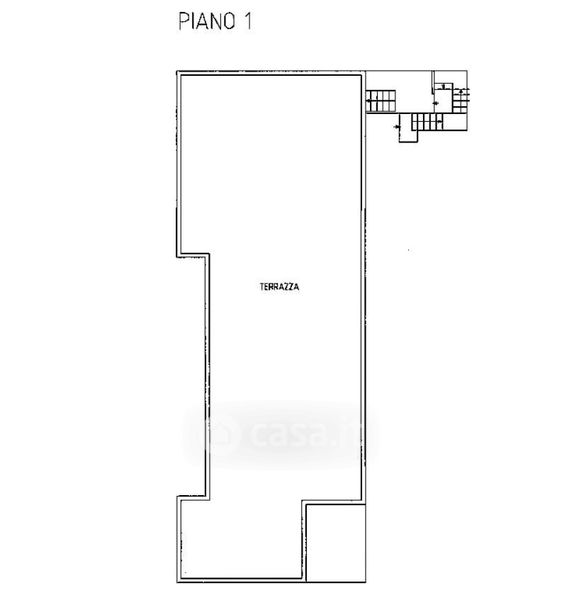
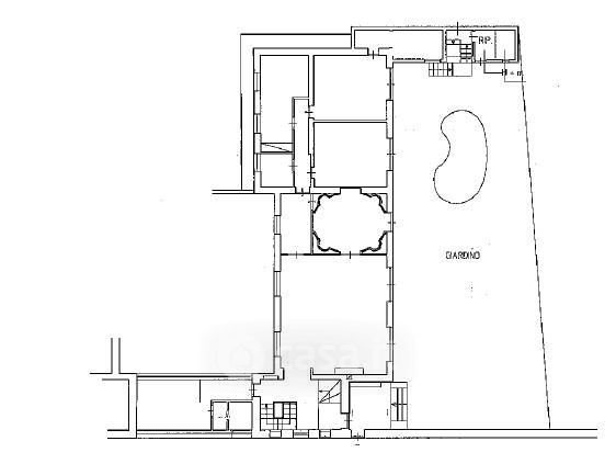
Villa in vendita Viale di Villa Grazioli , Roma
Salva
Casa.it
1/31
  • Street View
  • Map