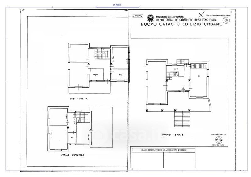
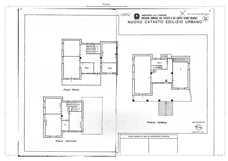
Villa in vendita Via del casale d'Antoni , Roma
Salva
Casa.it
1/40
  • Street View
  • Map