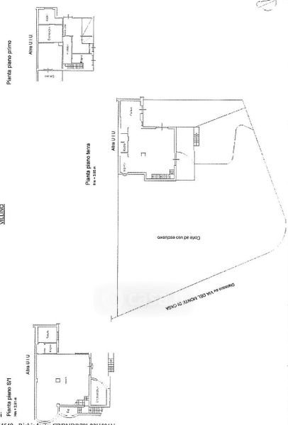
Villa in vendita Via del Monte di Casa 65, Roma
Salva
Casa.it
1/72
  • Street View
  • Map