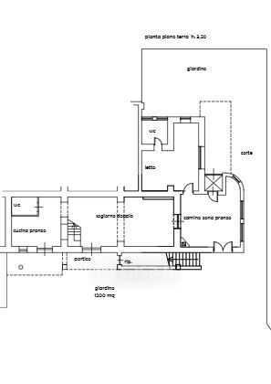
Villa in vendita Viale 5 Giugno 17, Ronciglione
Salva
Casa.it
1/15
  • Street View
  • Map