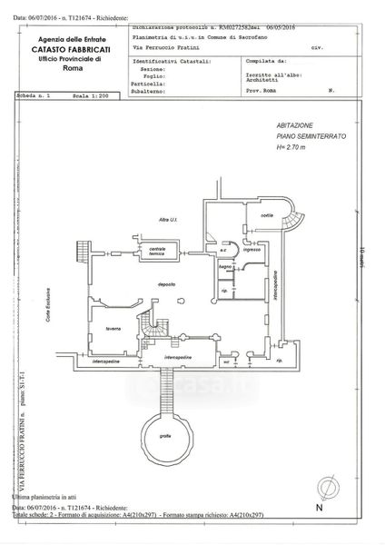
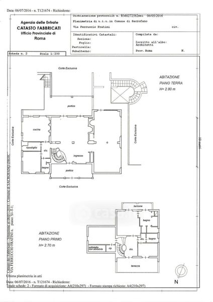
Villa in vendita Via Ferruccio Fratini 6, Sacrofano
Salva
Casa.it
1/56
  • Street View
  • Map