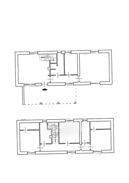
Villa in vendita Via Prenestina Nuova , San Cesareo
Salva
Casa.it
1/61
  • Street View
  • Map