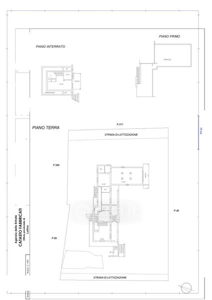
Villa in vendita Strada Provinciale 87 , San Felice Circeo
Salva
Casa.it
1/85
  • Street View
  • Map