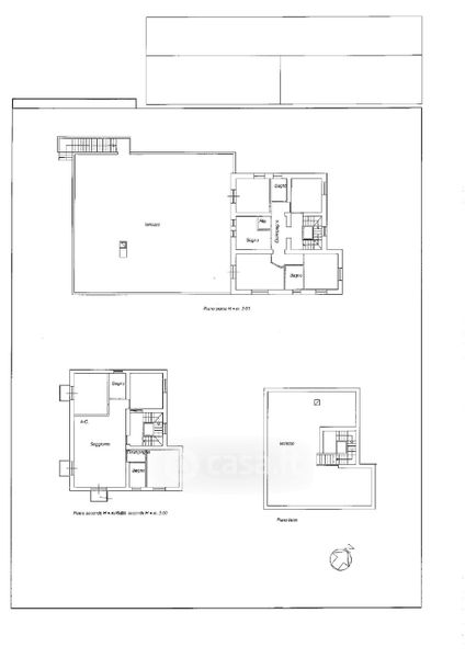
Villa in vendita Via Giacomo Leopardi , San Felice Circeo
Salva
Casa.it
1/50
  • Street View
  • Map