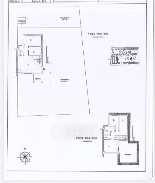
Villa in vendita Mesa del Mar , San Felice Circeo
Salva
Casa.it
1/100
  • Street View
  • Map