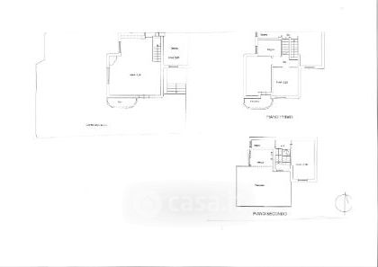
Villa in vendita Baia del Circeo , Terracina
Salva
Casa.it
1/55
  • Street View
  • Map