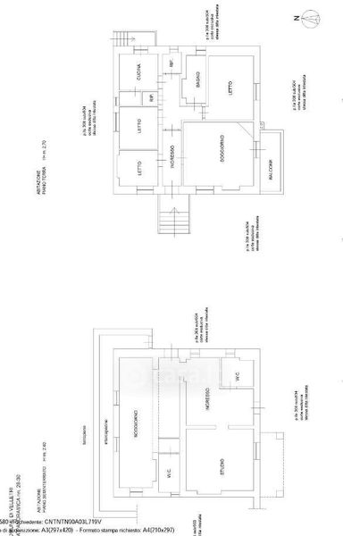
Villa in vendita Via Panoramica 28, Velletri
Salva
Casa.it
1/7
  • Street View
  • Map