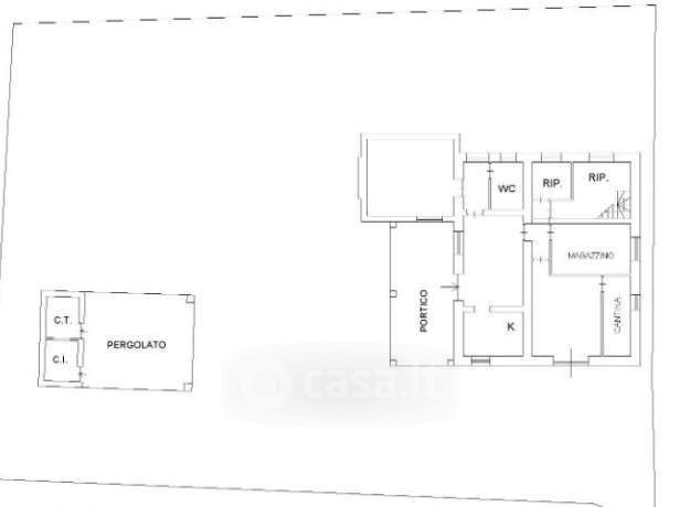
Villa in vendita Via Appia Sud , Velletri
Salva
Casa.it
1/15
  • Street View
  • Map