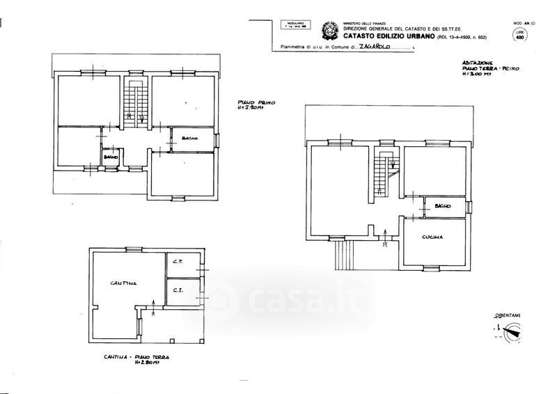
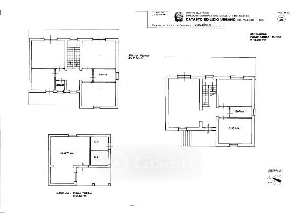
Villa in vendita Via Colle Giacinto 71, Zagarolo
Salva
Casa.it
1/85
  • Street View
  • Map