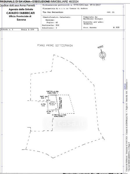
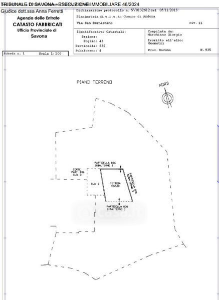
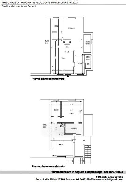
Villa in vendita Via San Bernardino , Andora
Salva
Casa.it
1/35
  • Street View
  • Map