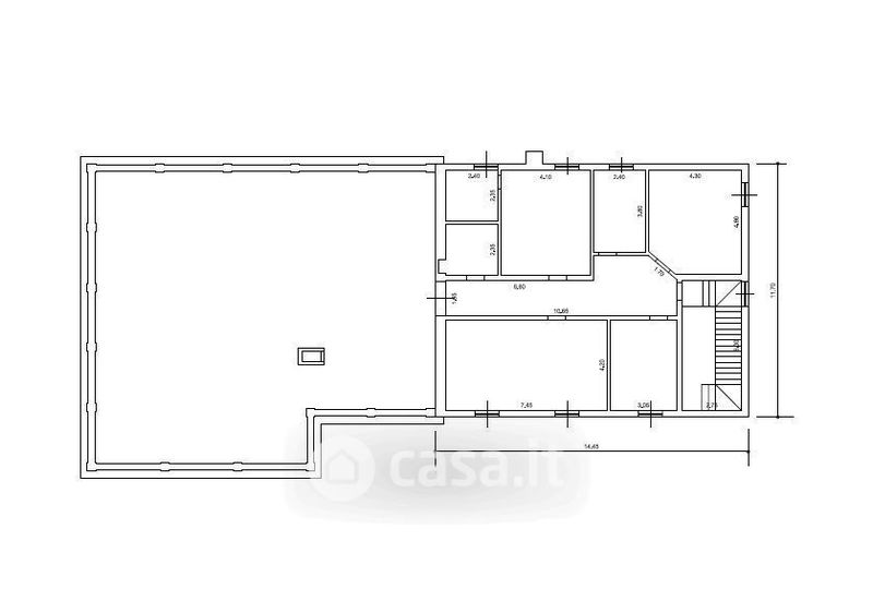
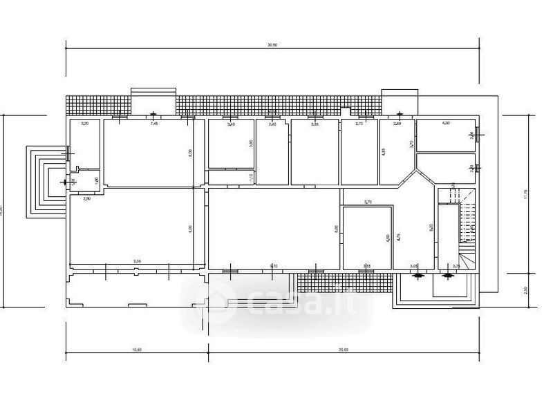
Villa in vendita Via Genova , Bolano
Salva
Casa.it
1/51
  • Street View
  • Map