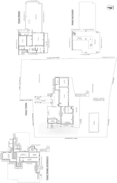
Villa in vendita Via Pecorile 94, Celle Ligure
Salva
Casa.it
1/83
  • Street View
  • Map