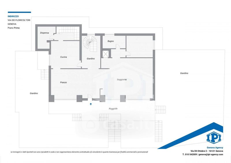
Villa in vendita Via dei Floricoltori , Genova
Salva
Casa.it
1/54
  • Street View
  • Map