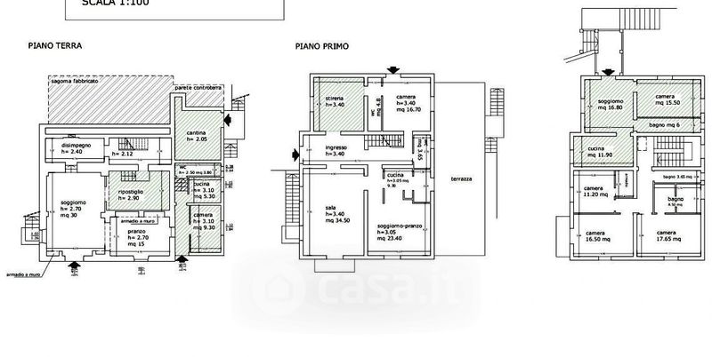
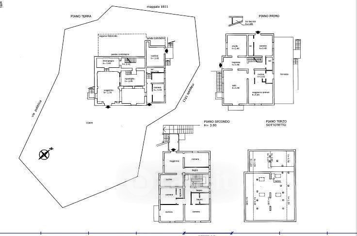
Villa in vendita Variante Aurelia 19134, La Spezia
Salva
Casa.it
1/42
  • Street View
  • Map