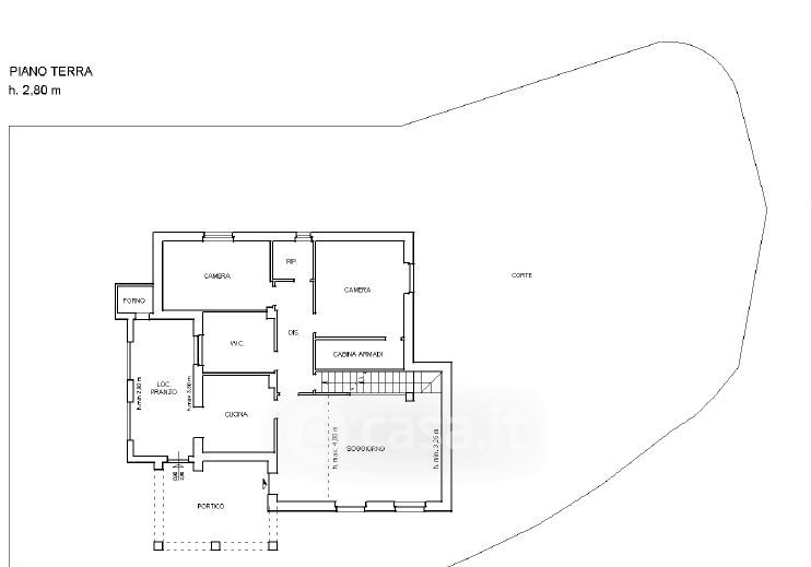
Villa in vendita Via Genova , La Spezia
Salva
Casa.it
1/84
  • Street View
  • Map