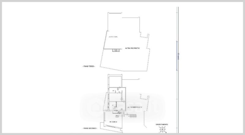
Villa in vendita Via Lozzana , Vezzano Ligure
Salva
Casa.it
1/32
  • Street View
  • Map