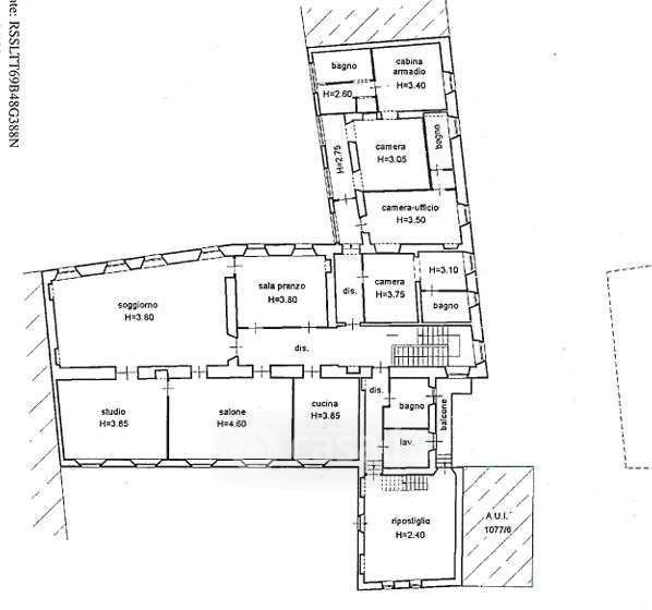
Villa in vendita Via Mandelli 16, Arena Po
Salva
Casa.it
1/53
  • Street View
  • Map