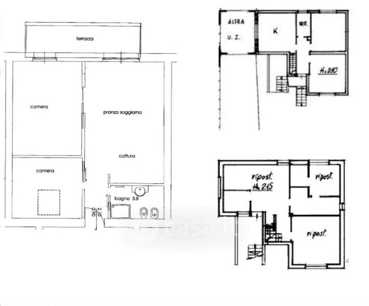
Villa in vendita Via G. Leopardi 7, Asola
Salva
Casa.it
1/31
  • Street View
  • Map