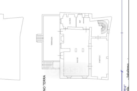
Villa in vendita Via Cogozzo di Sopra , Bedizzole
Salva
Casa.it
1/40
  • Street View
  • Map