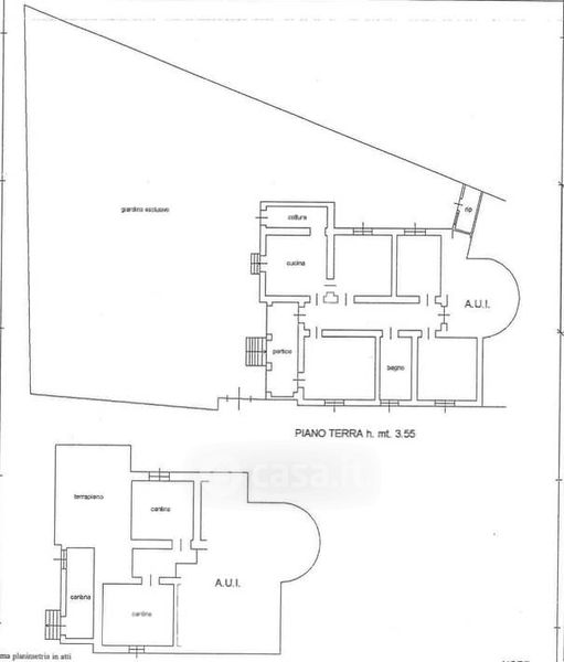
Villa in vendita Via Luigi Brignoli 18, Bergamo
Salva
Casa.it
1/32
  • Street View
  • Map