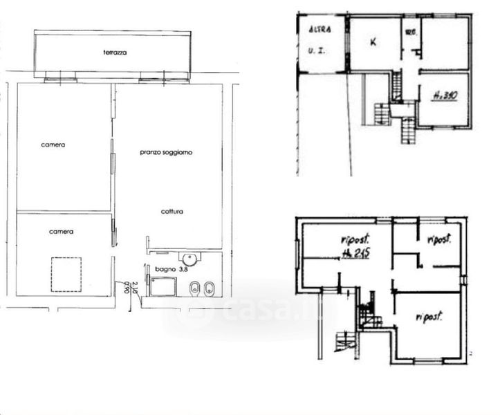
Villa in vendita Via Petrobelli 15 A, Borgo San Giacomo
Salva
Casa.it
1/31
  • Street View
  • Map