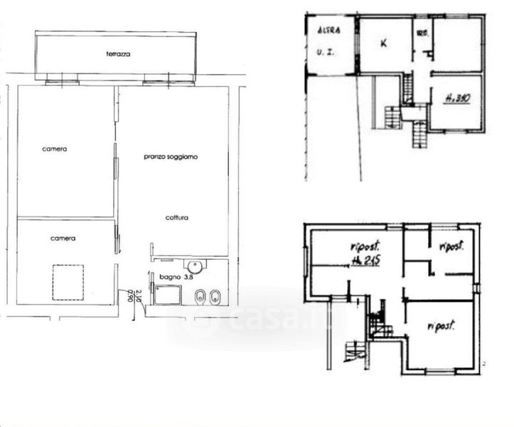
Villa in vendita Via Giovanni Randaccio 10, Brescia
Salva
Casa.it
1/17
  • Street View
  • Map