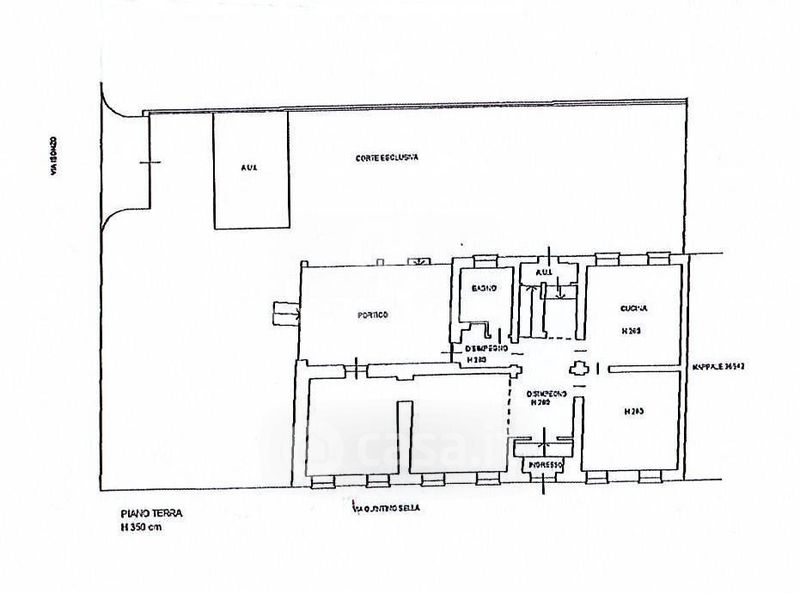
Villa in vendita Via Q. Sella 22, Busto Arsizio
Salva
Casa.it
1/18
  • Street View
  • Map