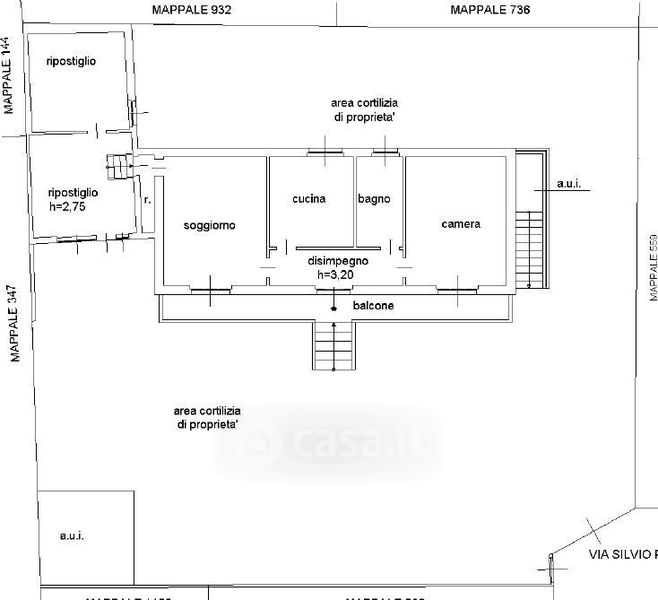
Villa in vendita Via Silvio Pellico 23, Canegrate
Salva
Casa.it
1/22
  • Street View
  • Map