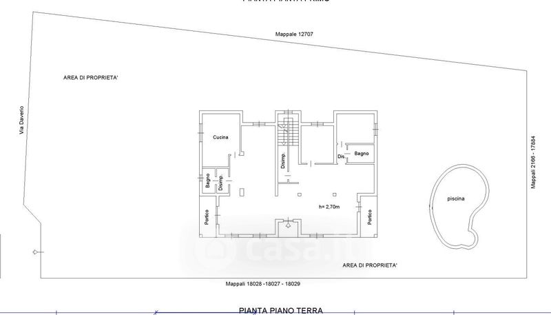
Villa in vendita Via Francesco Daverio 36, Cantù
Salva
Casa.it
1/44
  • Street View
  • Map