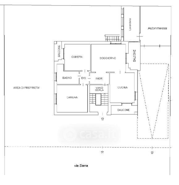
Villa in vendita Via Siena 6, Cardano al Campo
Salva
Casa.it
1/57
  • Street View
  • Map