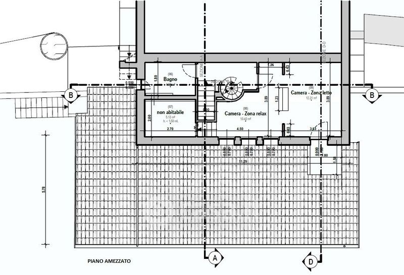
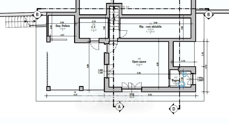
Villa in vendita Via Val Cavargna , Carlazzo
Salva
Casa.it
1/31
  • Street View
  • Map