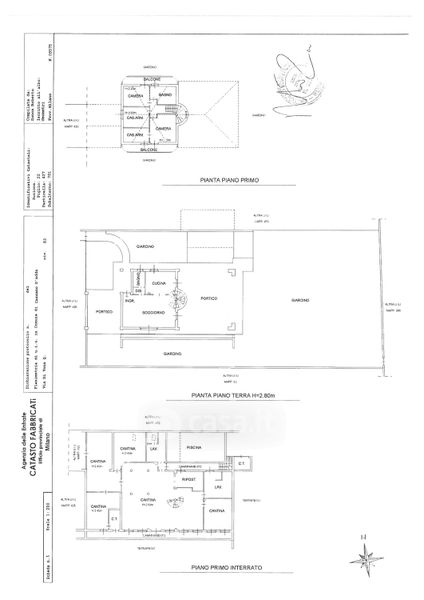
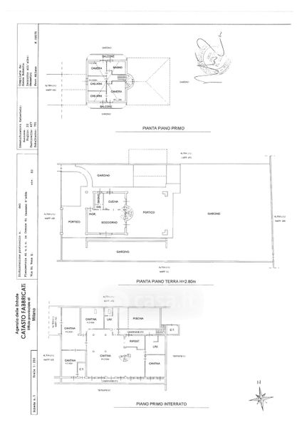
Villa in vendita Via Q. di Vona 83, Cassano d'Adda
Salva
Casa.it
1/31
  • Street View
  • Map