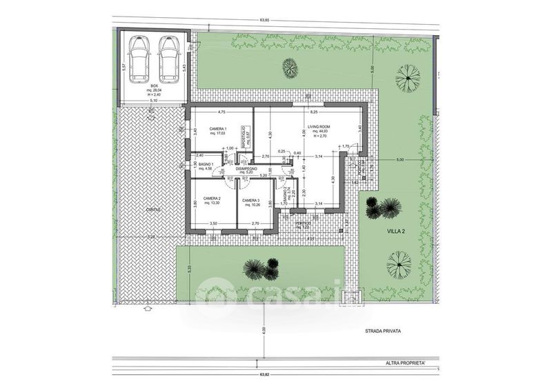
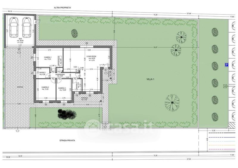
Villa in vendita Via Montegrappa , Cava Manara
Salva
Casa.it
1/7
  • Street View
  • Map