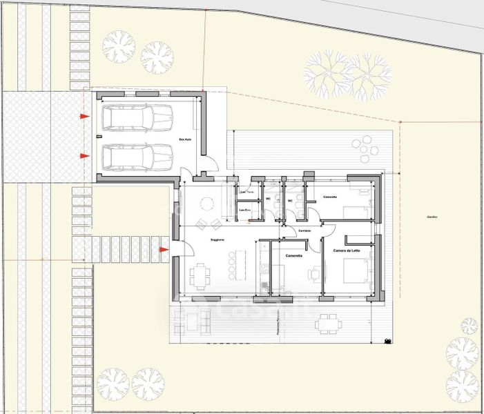
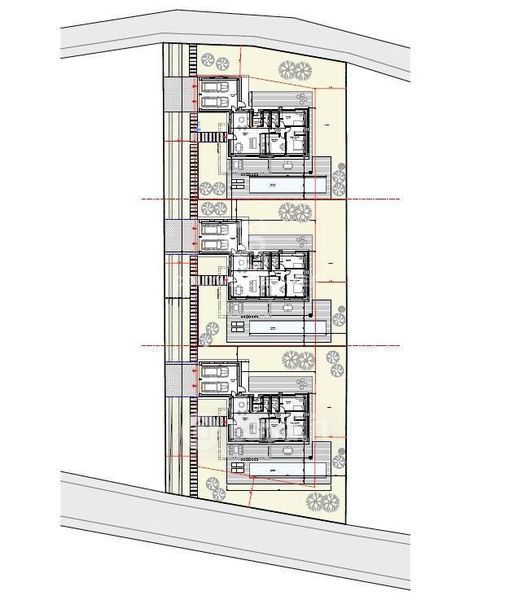
Villa in vendita Via Bosche , Cavriana
Salva
Casa.it
1/10
  • Street View
  • Map