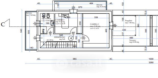
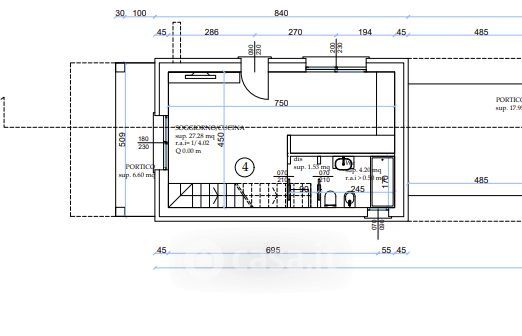
Villa in vendita Strada Vicinale delle Frassine , Cellatica
Salva
Casa.it
1/6
  • Street View
  • Map