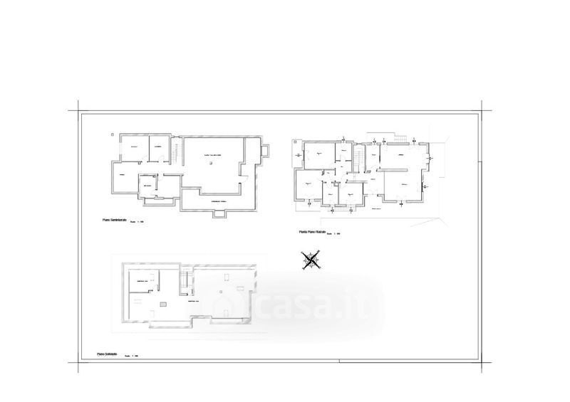
Villa in vendita Via Magenta 24, Cerro Maggiore
Salva
Casa.it
1/50
  • Street View
  • Map