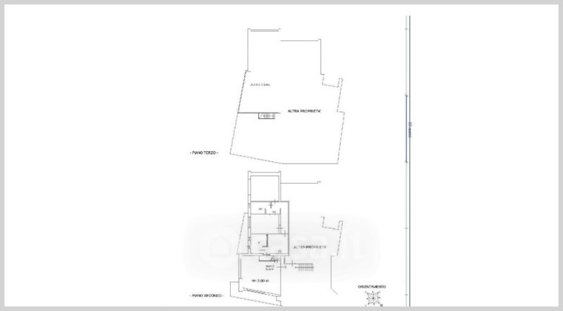
Villa in vendita Via Mura , Cisano Bergamasco
Salva
Casa.it
1/32
  • Street View
  • Map