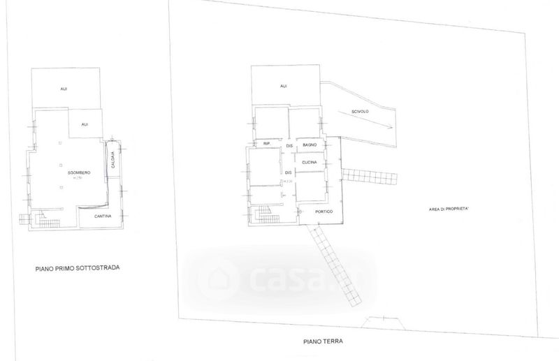
Villa in vendita Via Santa Maria 575, Cislago
Salva
Casa.it
1/25
  • Street View
  • Map